MIXED USE [PRIVATE RESIDENCE / ONE BEDROOM RENTAL APARTMENT / COMMERICAL OFFICE]

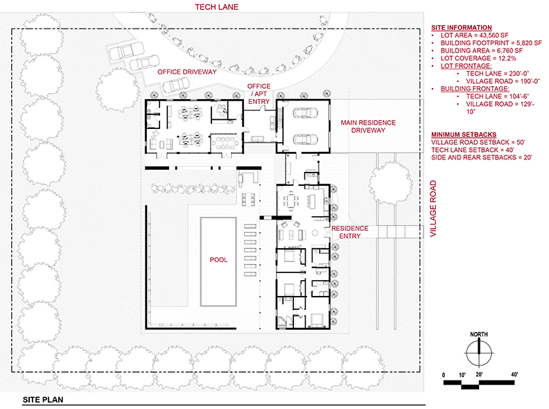
Conceptual Site Plan

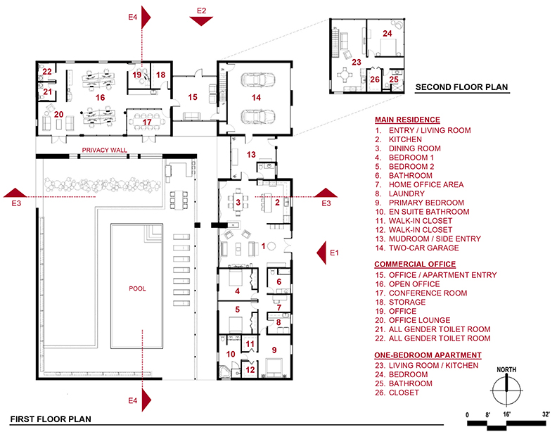
First and Second Floor Plans

Exterior Elevations [E1 & E2]

Elevations/Sections [E3 & E4]

Private Residence / Rental Apartment Elevation

Office Elevation

Exterior Poolscape

Private Residence Open Plan

Rental Unit Above Garage

Commercial Office Interior
